为了加快推进我校示范性高职院校建设,深化校企合作人才培养模式,增强学生实践能力,培养具有竞争力的文化产业专门性人才,扩大学校的社会服务功能,现诚邀符合招商条件的社会团体和个人加入我校大师工作室项目。现将项目招商事宜公告如下:
一、项目概况
(一)项目名称:四川文化产业职业学院大师工作室项目招商。
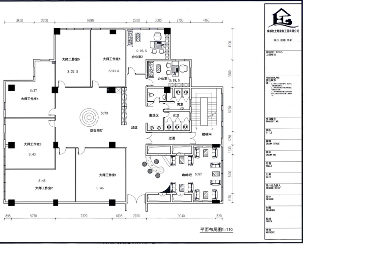
(二)项目地点:校内图情中心7楼,建筑面积约500平方米。提供6个独立工作室。(见附图)
(三)项目招商:比选模式。
(四)项目要求:文化创意领域内行业领军人物、知名技能大师或非遗传承人,有研发成熟的项目或创意产品,并与我校专业建设高度契合。
(五)项目申报:1、由各二级学院推荐申报,文创领域大师级人物为重点,每个项目应有我校教师、学生(团队)参与。2、意向合作方自主申报。相关二级学院提供合作意见。
(六)项目优势:
1、低成本办公。三年为期,入园第一年租金全免,第二三年考核合格后减免。
2、享受统一的运营管理服务。
3、对入园项目中的教师(团队)给予教学科研奖励等鼓励政策。
4、每个入围项目对应一个工作间,由入围项目在规定时间内自行装修使用。
二、意向合作方具备的资质条件
(一)文化产业领域内行业领军人物、知名技能大师或非遗传承人,有研发成熟的项目或创意产品,并与我校专业建设高度契合;
(二)具备大师认证条件。如技艺精湛、贡献突出、社会公认且在生产实践中能够起引领作用的高级技师,或获得市级以上首席技师、技术能手、优秀技能人才等称号的高技能人才,或非物质文化遗产传人,或具有绝技绝活的技能人才担当技能大师;
(三)具备技艺或技能保障。能进行技术攻关、技术创新、技术交流、技艺传授,为师生参与项目提供平台;
(四)具备引领转化能力。能发挥名师带徒弟的重要作用,能挖掘传统工艺进行传承创新;
(五)本项目不接受联合体投标;
三、入驻项目的具体条件
(一)入驻项目需符合文化产业政策和学校规划的专业重点发展方向,服从校方统筹安排。
(二)入驻项目需提供校企合作项目建议书、大师资信证明等有关资料,其项目具有较高的教学和实践价值、广阔的市场前景和良好的经济效益,并通过项目审查。其中,校企合作项目建议书需阐述该项目对学院专业建设、学生培养、学生就业实践等方面的意义,实施方案和所需学院的支持。
(三)入驻项目需秉持“从学生和专业出发”的原则,为学生发展服务,为专业建设服务。
(四)入驻项目需符合国家环保、安全、消防等法律法规要求,办理规范的相关手续。
(五)入驻项目应有大师具体联系指导的我校教师团队或学生团队,其项目应能为专业建设和人才培养提供合作。
(六)入驻项目能与校方共同制定实践技能培养方案,承担人才培养实践技能训练环节,接纳一定数量师生实践,并完成一定教学工作量。。
(七)入驻项目需服从学院为其分配的支持性的人力、物力、财力等资源,不得滥用学校分配资源,严格履行双方合作协议的内容。
(八)入驻项目合同约定的内部使用面积自行装修,合同到期未续签的校方收回且不支付装修费用。
四、申报要求和流程
(一)提交资料:
1、提交资质证明材料;
2、《四川文化产业职业学院大师工作室项目入驻申请书》的纸质版和电子版;
3、提交大师工作室负责人身份认证材料;
(二)审核资质与项目比选:
1、工作组对申请入驻的项目进行资质资格审查并且对该项目的可行性进行初审;
2、专家组对申请入驻的项目(大师)进行比选;
3、比选结果校方审定并公示。
(三)签约入驻
入驻项目成员学习大师工作室的管理规章制度;签订《四川文化产业职业学院大师工作室项目入驻协议书》,并在规定时间内完成装修入驻。
五、项目申报文件的获得
(一)项目申报文件于2016年9月26日—2016年10月8日,在四川文化产业职业学院明慧楼221、218办公室领取。
(二)购买项目申报文件需带材料:
1、合作意向方是企业或社会团体申请的需提供以下材料:
①法定人代表身份证明书;
②法人代表授权委托书;
③被委托人身份证;
④企业营业执照、组织机构代码证;
⑤省外企业入川备案登记证;
⑥资料费200元。
2、合作意向方是以个人身份申请的需提供以下材料:
①申请人身份证原件及复印件;
②所在行业颁发的相关资质证明材料、个人作品或体现个人技能水平的代表性材料;
③资料费200元。
(以上证件均需出示原件及交加盖鲜章的复印件)
六、联系方式
报名网址:http://www.scvcci.cn/
联系人:胡老师 李老师
联系电话:028-81442892 028-85600197
联系地址:成都市华阳镇锦江路四段399号四川文化产业职业学院明慧楼221、218办公室
四川文化产业职业学院
2016年9月12日
附:大师工作室平面示意图
